freie Bauplätze warten auf neue Eigentümer!
Hausbau in Eichenbarleben
Eichenbarleben – ein Ort, der die perfekte Balance zwischen ländlicher Idylle und städtischer Nähe bietet.
Eingebettet in die sanfte Landschaft der Magdeburger Börde, finden Sie hier Ruhe, Freiraum und eine freundliche Dorfgemeinschaft, in der man sich kennt und grüßt. Die Umgebung lädt zu Spaziergängen, Fahrradtouren und entspannten Nachmittagen im Grünen ein – Erholung direkt vor der Haustür.
Gleichzeitig profitieren Sie von der hervorragenden Lage: In wenigen Autominuten erreichen Sie die Landeshauptstadt Magdeburg mit ihrem vielfältigen Kultur-, Einkaufs- und Freizeitangebot. Über die nahegelegene B1 und A2 sind Sie zudem schnell in allen Richtungen unterwegs – ideal für Berufspendler und alle, die mobil bleiben wollen.
Ob junge Familie, Berufspendler oder Ruheständler – Eichenbarleben bietet Ihnen einen Lebensort, an dem Sie Wurzeln schlagen und sich Zuhause fühlen können. Hier verbindet sich die Gelassenheit des Landlebens mit den Vorteilen der Stadtnähe – ein Standort, der einfach passt.
Allgemeine Informationen
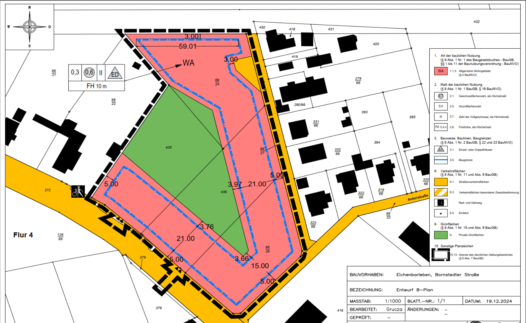
Wohntyp: Bebauung nach B-Plan mit Einfamilienhäusern
Preis: 150 Euro pro m²
Anzahl Bauplätze: 9
Fläche der Baugrundstücke: 567 m² - 1291 m²
Kontakt
Sollten Sie Fragen haben, nehmen Sie gern mit uns Kontakt auf.





