tolle Bauplätze warten nur noch auf Sie!
Finden Sie ihre neue Heimat in Hohenwarsleben
Hohenwarsleben – hier treffen ländliche Ruhe und urbane Nähe aufeinander. Der charmante Ort liegt am westlichen Stadtrand von Magdeburg und bietet damit eine ideale Mischung aus naturnahem Wohnen und schneller Anbindung an das Stadtleben. Die gewachsene Nachbarschaft, gepflegte Straßen und das grüne Umfeld schaffen ein Gefühl von Geborgenheit, in dem man gerne ankommt.
Dank der direkten Nähe zur A2 und B1 sind Sie in wenigen Minuten in Magdeburg, aber auch schnell in Richtung Braunschweig oder Hannover unterwegs – perfekt für Berufspendler. Einkaufsmöglichkeiten, Kitas, Schulen und medizinische Versorgung finden Sie direkt im Ort oder in unmittelbarer Umgebung.
Die umliegende Landschaft lädt zu ausgedehnten Spaziergängen, Fahrradtouren oder entspannten Stunden im eigenen Garten ein. Hohenwarsleben ist ein Wohnort für alle, die Ruhe und Natur schätzen, aber gleichzeitig nicht auf die Vorzüge der Stadt verzichten möchten.
Allgemeine Informationen
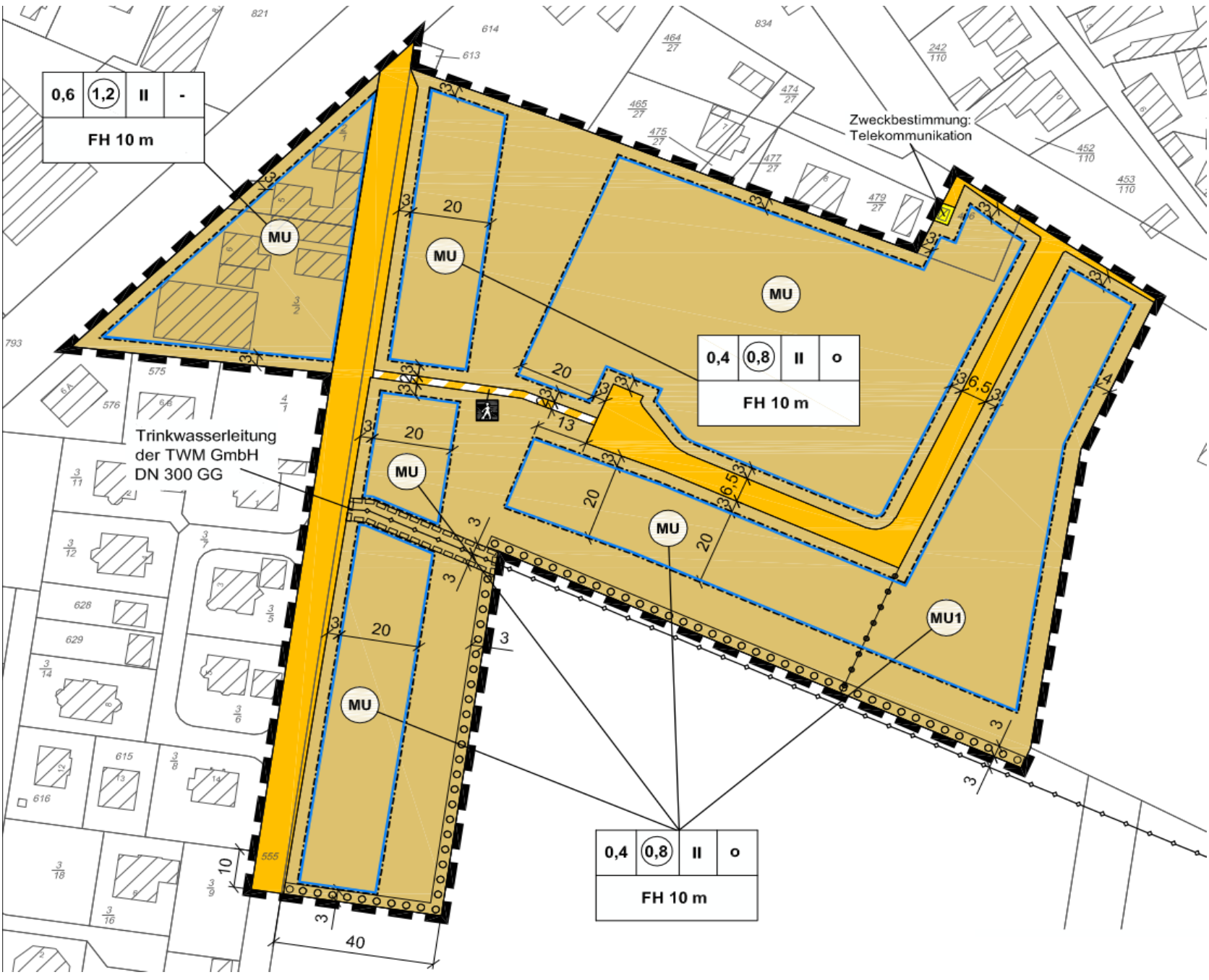
Wohntyp: Bebauung nach B-Plan
Preis: 160 Euro pro m²
Anzahl Bauplätze: 36
Fläche der Baugrundstücke: 416 m² - 870 m²
Erschließungsstand: unerschlossen
-Strom (Wärmepumpe möglich), Wasser, Abwasser-Kanal, Regenwasser in öffentlichen Kanal
-RW-Versickerung auf dem GS, öffentliche Straße, Privatstraße (teilweise),
-Infokabel
Kontakt
Sollten Sie Fragen haben, nehmen Sie gern mit uns Kontakt auf.






