Attraktive Wohnmöglichkeiten in naturnaher Lage
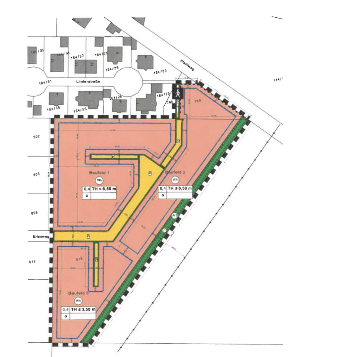
Baugebiet „Östliche Kanalstraße“ in Jersleben
Das Baugebiet „Östliche Kanalstraße“ befindet sich im charmanten Ort Jersleben und besticht durch eine ruhige, grüne Umgebung. Kurze Wege zu Einkaufsmöglichkeiten, Schulen und Freizeiteinrichtungen machen den Standort besonders familienfreundlich. Gleichzeitig sorgt die gute Verkehrsanbindung für eine schnelle Erreichbarkeit der umliegenden Städte. Die großzügigen Grundstücke bieten ideale Voraussetzungen für modernes, individuelles Wohnen in ländlicher Idylle.
Wissenswertes:
- Bebaubar mit: teilweise mit Einfamilienhaus und Doppelhaus nach B-Plan (genaue Infos auf Anfrage)
- Kosten: 140 Euro pro m²
- verfügbare Bauplätze: 5 freie Bauplätze
Kontakt
Sollten Sie Fragen haben, nehmen Sie gern mit uns Kontakt auf.




